The renovation proposal for two classrooms at the DSSI in Seoul wishes to translate some of the relevant pedagogical trends into a new spatial organization. The relationship between educators and students inside a classroom has shifted empowering students to redefine the principles of that relationship while, at the same time, educators have a larger set of educational tools at their disposal to engage with students differently. All this has transformed the physical requirements of a classroom into a flexible space that should be easily reconfigured so to adapt to ever-changing educational settings.
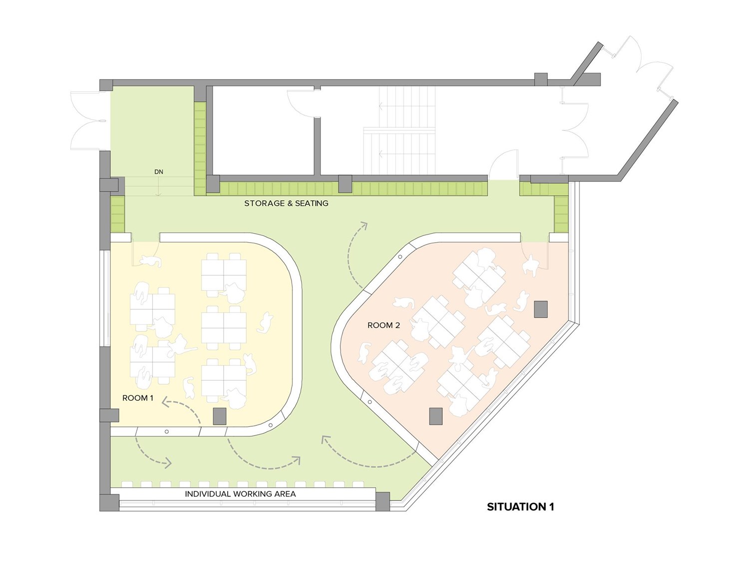
Taking these considerations in mind, the renovation design proposes a shift from the existing strict division of spaces –two classrooms and a corridor- into a new plan where the boundaries between classrooms and circulation spaces are blurred at times. The circulation space and the classrooms are initially differentiated by colors, being the first one covered in green and the second ones in warm yellows and orange tones. This clear distinction disappears when the educator or student feels the need for a classroom space’s extension.
A system of rotational walls will allow direct connections between the classroom and the circulation space transforming it into a playground, a library or an individual tutorial space. These activities can be used individually by one of the classrooms or shared by 1st and 2nd grade students. The possibility to share the green spaces between classrooms allows for a substantial increase in the area of each of the two classrooms.
The dynamic walls that separate the classrooms from the circulation space have the capacity to store most of the items used by students inside the classroom such as notebooks, books, pencils, markers, games or paper. The wall also acts as an exhibition surface towards the green space where student’s work can be displayed by simply pinning up the work in a cushioned surface. This soft material has sound absorption properties as well as keeping the classrooms silence from the buzz of the circulation space at times when concentration activity is required inside the classroom.
Above 1,7m height, the wall is finished in transparent polycarbonate panels allowing natural light to penetrate inside the classroom while expanding the views along the full space.