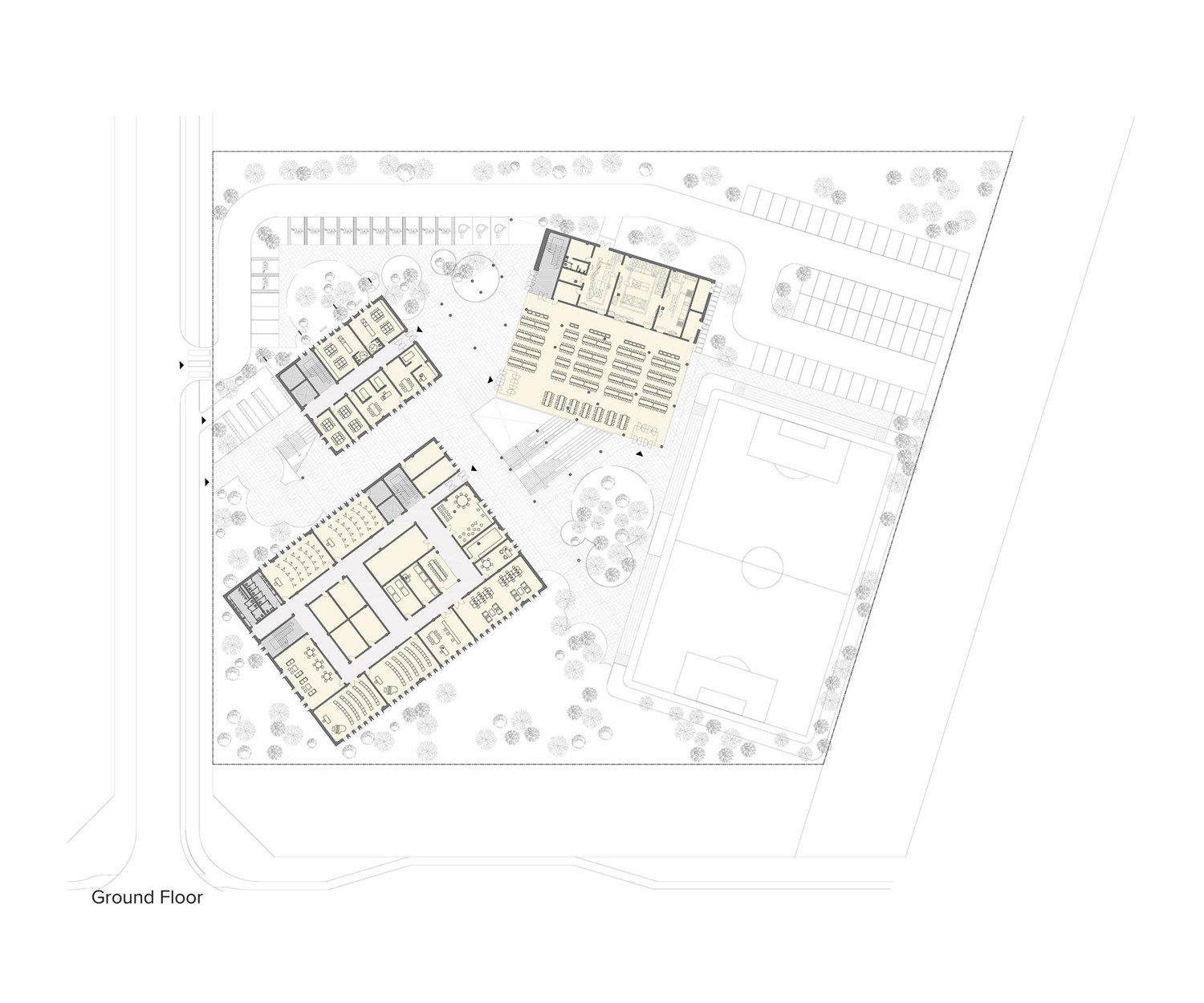
Baegot Middle School proposes a compact building organized in four interconnected volumes articulated in plan to allow maximum south orientation for classrooms while giving sufficient exterior spaces for the football field and the parking area. Each volume contains a unique program in its core that acts as a natural ventilation system, natural light filter and as a social intensive plaza around the classrooms. These central programs connect all the levels so that accessibility is equal to from all areas.
The plan layout is also a reflection of an efficient circulation system. From middle school, students have no assigned classroom but rather they move from class to class during their school day. Consequently, students are provided with a locker situated in the hallway. The project proposes a centralized locker area from where two circulation loops reach all the classrooms minimizing walking distances.