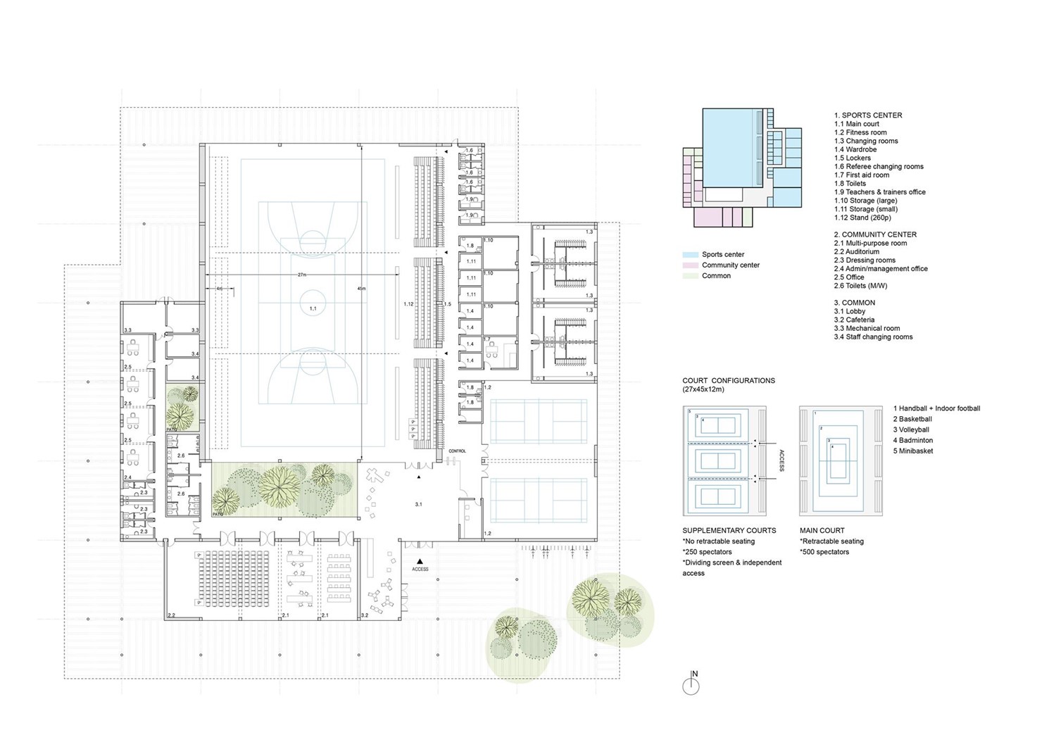
The project is expected to provide 3500m2 of sports facilities and a community center.
It will be built, over 50% of its cost, of prefabricated elements such as cross-laminated timber structure.
Moreover, will be LEED certificated and implemented in BIM with a LOD over 300.